string(4) "3408"

Котел 0.9 МВт на щепе в Биробиджане

Версия
для печати
В наличии на складе Цена в рублях с НДС 2 497 000
Получите скидку
у менеджера
Цена на котел 0.9 МВт на щепе с доставкой от 2 497 000 рублей с НДС
Вид топкиВихревая, Автоматическая
Максимальная тепловая мощность, кВт900
ТопливоЩепа
Отапливаемая площадь, м²6900-9900
Доставка ТК в г. Биробиджан и по России
Безналичный расчет
Подобрать котел по мощности
Опросный лист
Опросный лист
Эту продукцию можно
купить в лизинг
  • Технические
    характеристики
  • Описание
    товара
  • Комплект
    поставки
  • Дополнительно
    потребуется
  • Подключение и
    монтаж
  • Сертификаты и
    гарантии
  • Отзывы о
    продукции
  • Видео
    обзор
  • Подбор
    котла
  • Котел может работать как в автоматическом так и ручном режимах
  • Работает на отходах деревопереработки - опилках и щепе влажностью до 60% и размерами кусков до 100 мм, в ручном режиме возможно сжигание дров типа полено
  • Уникальная конструкция бункера топлива исключает зависание топлива
  • Конструкция котла состоит из вихревой подовой топки, завихрителя воздуха и бункера со плунжерной подачей топлива в топку
  • Автоматизация котла предусматривает полный контроль процесса горения - контроль эффективности сжигания топлива, поддержание требуемых параметров теплоносителя, безопасность работы
  • Повышенная надежность работы котла обеспечивается изготовлением трубной системы трубы сталь 10, 20
  • Гарантия 24 месяца, срок службы 10 лет

Технические характеристики котла на щепе 900 кВт

Тип Котел КВм ДО
Тип отопительного котла Твердотопливный
Бренд HeatExpert
Марка Котел КВм ДО 900 кВт
Вид топки Вихревая, Автоматическая
Максимальная тепловая мощность, кВт 900
Максимальная тепловая мощность, МВт 0.9
Максимальная тепловая мощность, Гкал 0.8
Диапазон регулирования мощности, % 50-100
Топливо Щепа
Низшая теплота сгорания проектного топлива, кКал/кг 2440
Влажность топлива, % 50
Фракционный состав топлива, мм 5-25
КПД котла на ЩЕПЕ, не менее, % 80
Расход ЩЕПЫ среднечасовой за отопительный сезон, кг/ч 203
Расход ЩЕПЫ при максимальной нагрузке котла, кг/ч 355
Расход условного топлива, кг/ч 124
Возможные опции GSM, Ethernet модуль, авторозжиг
Автоматическое золоудаление +
Максимальная температура воды на выходе из котла, °C 115
Минимальная температура воды на входе в котел, °C 55
Давление воды, не более, МПа (кгс/см²) 0.3-0.6 (3-6)
Номинальный расход теплоносителя, м³/ч 28
Расход теплоносителя через котел min-max, м³/ч 4-7
Гидравлическое сопротивление при номинальном расходе, МПа (кгс/cм²) не более 0.07 (0.7)
Аэродинамическое сопротивление, Па (мм. вод. ст.) 140 (1.4)
Разряжение в топочной камере, Па (мм. вод. ст.) 20-40 (2-4)
Объем уходящих газов, м³/ч 4400
Температура уходящих газов, не более, °С 220
Присоединенная электрическая мощность, кВт 9.52
Тяга Уравновешенная
Водяной объем котла, л 600
Объем топочной камеры, м³ 2.78
Размер топочной камеры, длина*ширина*высота, мм 1705х960х2060
Присоединительные размеры по водяному тракту, Ду 100
Присоединительные размеры газохода уходящих газов, ширина*высота / сечение, мм/м² 600х200 / 0.12
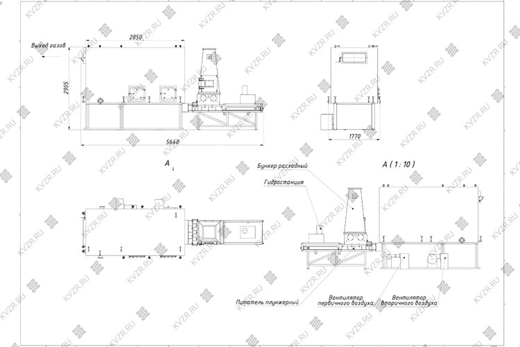
Габаритные размеры блока, длина*ширина*высота, мм 2840х1360х2250
Габаритные размеры установки, длина*ширина*высота, мм 5640х1770х2905
Масса, кг 2800
Конструкция котла водотрубная, газоплотная, вертикальная
Количество контуров Одноконтурный
Размещение Напольный
Тип камеры сгорания Закрытый
Управление Электронное
Принцип работы твердотопливного котла Классический
Энергонезависимый Нет
Тип питания Трехфазное
Встроенный циркуляционный насос Нет
Встроенный расширительный бак Нет
Энергоэффективность Высокая
Отапливаемая площадь, м² от 6900 до 9900
Отапливаемый объем, м³ от 20500 до 29500

Котел для щепы и древесных отходов 900 кВт

  • мощность 900 кВт, 0,9 МВт, 0,8 ГКал;
  • полностью автоматический режим работы котла– подача опилок и щепы, запуск, контроль горения, противопожарная безопасность;
  • возможность работы в ручном режиме, для сжигания крупногабаритных древесных отходов;
  • вихревая топка с приемным бункером и автоматической подачей опилок в котел;
  • температура нагрева теплоносителя от 95 до 115 градусов;
  • топливо – отходы, сырые опилки, стружки, прессованные опилки и пеллеты размером до четырех см;
  • давление теплоносителя от 0.3 до 0,6 МПа;
  • отапливаемая площадь помещения от 6900 до 9900, отапливаемый объем помещения от 20500 до 29500 м3 (в зависимости максимальной температуры в регионе эксплуатации).

Автоматический котел отопления на сырой щепе и древесных отходах мощностью 900 кВт применяется на предприятиях лесопереработки, деревоперерабатывающих предприятий и в сельском хозяйстве, для сушильных камер, для теплиц, для производства, отопления промышленных помещений и зданий.

Котел отопления на щепе 900 кВт устройство и описание

Котел на щепе 900 кВт для отопления для производства изготавливается водотрубным стальным с бункером для щепы, плунжерным питателем, вихревой топкой, котельного блока с топочной камерой для горения древесных отходов и конвективными пакетами для нагрева воды до требуемой температуры.

Топка вихревого водогрейного котла 900 кВт на щепе представляет собой опорный каркас под установку котла, футеровка топки выполняется из огнеупорного кирпича и шамотного бетона для создания пояса зажигания для сжигания древесных отходов с высокой влажностью. Вихрь создается раздельной подачей воздуха. Над кирпичным подом устроена топочная камера, куда подается воздух и происходит горение топлива. Весь объем окружен трубами, воспринимающими тепло и нагревающие воздух. Топочная камера газоплотная, что исключает присосы воздуха и дымление в котельной. Первичный воздух подается высоконапорным вентилятором в зону подачи топлива горение и создание первичного вихря. Вторичный воздух подается вентилятором среднего давления слоя для дожига горючих и поддержания вторичного вихря.

Плунжерный питатель подает щепу из расходного бункера в котел.

Водяной котел отопления на щепе 900 кВт состоит из топочной камеры экранированной газоплотными сварными панелями с вертикальными трубами соединенных раздающими и собирающими коллекторами. Обмуровка выполняется из тепловой обшивки и декоративных листов. Выход газов осуществляется сзади и сверху топочного блока.

Котел с автоматической подачей опилок 900 кВт – принцип работы

Котел твердотопливный на щепе 900 кВт промышленный работает полностью автоматически. Автоматика осуществляет автоматический розжиг, запуск, работу регулировку давления и остановку котла в случае превышения допустимых параметров работы. Автоматика осуществляет автоматическую подачу топлива с контролем производительности по заданной температуре теплоносителя. Подача воздуха осуществляется в зависимости от объема поданного древесного топлива. В котле с автоматической подачей щепы предусмотрена система пожаротушения в случае воспламенения топлива в топливопроводе.

Комплект автоматики состоит из щита управления котлом, контрольно измерительных приборов КИП и исполнительных механизмов.

Промышленный котел на щепе мощностью 900 кВт работает с автоматикой, включающей в себя контроль и регулировку следующих параметров:

  • разряжения в топочной камере;
  • давления теплоносителя на выходе;
  • температуры теплоносителя на выходе;
  • содержания кислорода в дымовых газах;
  • наличие давления в системе пожаротушения топливопровода;
  • контроля факела;
  • контроля минимального расхода теплоносителя.

На случай возникновения необходимости сжигания дополнительно крупногабаритных древесных отходов, автоматика может переключиться в ручной режим работы и подача древесных отходов осуществляется вручную кочегаром через загрузочную дверку.

Подключение и монтаж промышленного котла, который работает на щепе мощностью 900 кВт производятся по проекту.

В зависимости от количества котельных агрегатов, наличия или отсутствия теплообменников существуют различные варианты схем подключения котла.

Комплектация твердотопливного котла на щепе 900 кВт

Комплектация котла включает в себя:

  • котельный блок;
  • загрузочный бункер;
  • плунжерный питатель;
  • топку;
  • предохранительные клапаны;
  • вентиляторы первичного и вторичного воздуха;
  • запорную арматуру в пределах котла;
  • контрольно измерительные приборы;
  • дымосос;
  • воздуховоды вторичного воздуха.

Автоматика приобретается отдельно, ее рекомендуется заказать по техническому заданию, с учетом ваших пожеланий.

Купить котел 900 кВт на щепе и все необходимое для его подключения вы можете на нашем заводе. Также наш завод оказывает услуги по проектированию, монтажу, шеф монтажу и пуско-наладке котельных.

На заводе изготовителе отопительный российский котел 900 кВт на щепе подвергается гидравлическому испытанию давлением 0,9 МПа (9 кгс/см2).

Срок эксплуатации отопительного котла на щепе 10 лет. Наш котел может рассматриваться, как аналог котлов Гефест на опилках, бийских и ковровских котлов Гейзер termowood, Гейзер biomasse, Гейзер energy российского производства, котлов серии КМП, bio vulkan pro, firewood, а также таких производителей, как котельный завод Экодрев Тверь, Автоматик Лес, Ирбис. Действующая цена на котел на щепе 900 кВт указана на сайте, производство котлов по техническому заданию завод осуществляет в течении 10-20 рабочих дней.

Комплект поставки котла на щепе 900 кВт

Цена водогрейного котла на щепе 900 кВт в Биробиджане включает в себя котельный блок в изоляции, вихревую топку для эффективного сжигания опилок, систему подачи топлива с бункером, вентили, затворы, манометры, термометры, вентилятор поддува и предохранительные клапаны. Ниже приведена подробная информация.

Дополнительное вспомогательное оборудование для работы котла на щепе 900 кВт

Для эффективной и надежной работы котла на щепе 900 кВт в вашей котельной вам потребуется дополнительное оборудование - автоматика ЩУК, дымосос, насос сетевой и подпиточный, золоуловитель (по желанию), большой бункер для древесных отходов, транспортеры, газоходы и переходники для газового тракта, дымовая труба. Мы предлагаем рассмотреть типовые варианты комплектации.

В случае если у вас на объекте уже имеется насосное и тягодутьевое оборудование, мы можем проверить совместимость котла на щепе 900 кВт нашего производства и вашего оборудования.

Можем изготовить нестандартные узлы для выполнения быстрого монтажа котла - газоходы и узлы обвязки.

Типовую схему монтажа котла вы можете посмотреть во вкладке схемы подключения и монтаж.

Щит управления котлом на древесных отходах с таймером

  • регулирует теплопроизводительность установки путем поддержания равномерного поступления древесного топлива в котел;
  • поддерживает и контролирует заданную температуру теплоносителя на входе и выходе из котла;
  • включает систему пожаротушения в топливопроводе в случае аварийной ситуации.

Выполняет ручное и автоматическое управление:

  • дутьевым вентилятором первичного воздуха;
  • дутьевым вентилятором вторичного воздуха;
  • дымососом;
  • питателем топлива;
  • ворошителем.

Контролирует:

  • разряжение в топочной камере котла;
  • перегрузки привода питателя топлива по току;
  • погасания факела в топке котла;
  • падение температуры дымовых газов на выходе из котла при остывании котла;
  • повышение температуры дымовых газов на выходе из котла и перегрев дымососа;
  • опорожнение расходного бункера топлива;
  • заполнение расходного бункера топлива.

Предупреждает об аварийной ситуации при работе котла с помощью световой и звуковой сигнализации.

Цена 550 000 рублей с НДС
  • БЕЗ УЧАСТИЯ ОПЕРАТОРА ПРОИЗВОДИТ НАСТРОЙКУ ПОДАЧИ ВОЗДУХА, РАБОТУ ДЫМОСОСА И ТОПЛИВОПОДАЧИ ПОСЛЕ ЗАПУСКА КОТЛА В РАБОТУ
  • БЕЗ УЧАСТИЯ ОПЕРАТОРА НЕПРЕРЫВНО КОНТРОЛИРУЕТ И КОРРЕКТИРУТ ЭФФЕКТИВНОСТЬ СЖИГАНИЯ И РАСХОД ТОПЛИВА (ДАЖЕ В СЛУЧАЕ ИЗМЕНЕНИЯ ПАРАМЕТРОВ ТОПЛИВА (ВЛАЖНОСТЬ, ФРАКЦИЯ, КАЛОРИЙНОСТЬ)
  • БЕЗ УЧАСТИЯ ОПЕРАТОРА ВЫПОЛНЯЕТ ОСТАНОВ КОТЛА В ШТАТНОЙ И АВАРИЙНОЙ СИТУАЦИИ
  • регулирует теплопроизводительность установки;
  • поддерживает и контролирует заданную температуру теплоносителя на входе и выходе из котла;
  • осуществляет автоматическую продувку топливопровода;
  • включает систему пожаротушения в топливопроводе в случае аварийной ситуации.

Выполняет ручное и автоматическое (через частотные преобразователи) управление:

  • дутьевым вентилятором первичного воздуха;
  • дутьевым вентилятором вторичного воздуха;
  • дымососом;
  • питателем топлива;
  • ворошителем.
Цена 1 800 000 рублей с НДС
  • Компактный золоуловитель для твердотопливных котлов
  • Может устанавливаться как сразу за котлом, так и на улице
  • Универсальная конструкция позволяет организовать выход справа или слева, в зависимости от компоновки газоходов
Цена 46 000 рублей с НДС

Дымосос для удаления дымовых газов из котла.

Цена 101 400 рублей с НДС

Производим газоходы по индивидуальному заказу согласно схеме компоновки котельной. Системы газоходов могут включать в себя:

  • шиберы;
  • газоходы различного сечения;
  • переходы;
  • тройники;
  • карманы всасывающие дымососов.

Используется в качестве сетевого насоса в промышленных отопительных котельных

Цена 71 600 рублей с НДС

Используется в качестве подпиточного насоса в промышленных отопительных котельных

Цена 44 600 рублей с НДС

Используется в качестве сетевого насоса в промышленных отопительных котельных

Цена 192 700 рублей с НДС

Используется в качестве сетевого насоса в промышленных отопительных котельных

Цена 203 600 рублей с НДС

Схемы подключения и монтаж котла на щепе 900 кВт

Водогрейный твердотопливный стальной отопительный котел 0.9 МВт на щепе, предназначен для получения горячей воды номинальной температурой на выходе из котла от 95 до 115 °С рабочим давлением до 0,6 (6,0) МПа (кгс/см), используемой в системах централизованного теплоснабжения на нужды отопления, горячего водоснабжения. Устанавливается в производственных, промышленных и отопительных котельных.

Смотреть
Скачать

Схема монтажа котла и бункера "Живое дно"

Смотреть
Скачать

Схема монтажа котла и бункера топлива "Живое дно"

Смотреть
Скачать

Схема монтажа котла и склада "Живое дно"

Дополнительные услуги

Сертификат и качество котла на щепе 900 кВт

Водогрейные котлы производства Котельный завод "РЭП" соответствуют строгим стандартам качества и безопасности. Завод производит котлы в соответствии с требованиями ГОСТ 30735-3001 по Техническим Условиям завода.

Котлы имеют сертификаты соответствия Техническим регламентам Таможенного союза:

  • ТР ТС 010/2011 «О безопасности машин и оборудования».
  • ТР ТС 032/2013 - «О безопасности оборудования, работающего под избыточным давлением».

Водогрейный котел 0.9 МВт на щепе имеет гарантийный срок 24 месяца и срок работы при соблюдении правил монтажа и эксплуатации оборудования 10 лет.

Патент на топочное устройство твердотопливного котла .jpg
Патент на топочное устройство твердотопливного котла
Сертификат для водогрейных котлов .jpg
Сертификат на водогрейные котлы

Отзывы о продукции

Отзыва о товаре пока нет, будьте первыми!

Котельный завод производит котел для отопления на щепе мощностью 900 кВт для производства, сушильных камер, теплиц и промышленных твердотопливных водогрейных котельных.

Смотреть видеообзор на
Подберите необходимую мощность котла для вашего объекта
Тип здания
Регион
Населенный пункт
Вид топлива
Наружный объем здания (м3)
Отапливаемый подвал

Как подобрать мощность котла для вашего объекта

Подобрать мощность котла по площади важно учитывая не только площадь и объем здания, но и тип зданий и климатические данные региона.

На нашем сайте калькулятор расчета мощности котла учитывает тепло, требуемое на возмещение тепловых потерь через строительные конструкции и потери, вызываемые инфильтрацией (проникновением) наружного воздуха, через их неплотности и периодически открываемые двери.

Наружный строительный объем здания должен определяться умножением площади горизонтального сечения, взятого по внешнему обводу здания на уровне первого этажа на полную высоту здания, измеренную для панельных зданий: от уровня чистого пола (нулевой отметки) до верхней плоскости теплоизоляционного слоя чердачного покрытия, для остальных строений от уровня земли.

Расчетная температура воздуха в отапливаемых зданий принимается в зависимости от типа и назначения здания:

  • Гостиница, общежитие, административное здание, жилые дома + 20 °С;
  • Детские сады, ясли, поликлиники, амбулатории, диспансеры, больницы + 22 °С;
  • Высшие и средние специальные учебные заведения, общеобразовательные школы, школы интернаты, лаборатории, предприятия общественного питания, клубы, дома культуры + 16 °С;
  • Театры, магазины, пожарные депо + 15 °С;
  • Кинотеатры + 14 °С;
  • Гаражи + 10 °С;
  • Бани + 25 °С.

В случае если требуется отопление различных по типу зданий, теплопотребление каждого считается отдельно, полученные значения складываются и подобрать мощность котла нужно в соответствии с общей суммарной мощностью каждого отдельно стоящего задания.

Климатические условия вашего региона принимаются в соответствии с СП 131.13330 Строительная климатология. Данные по всем регионам России занесены в наш калькулятор расчета мощности котла.

Подобрать мощность котла по площади с учетом потребностей объекта в тепле на вентиляцию и горячую воду возможно только с более детальным расчетом. Его вы можете заказать в отделе сбыта котельного завода отправив заявку на электронный адрес sb@kvzr.ru или позвонив по телефонам (38-52) 29-97-41, 29-97-42.

Вопрос-ответ

  • Технические
    характеристики
  • Описание
    товара
  • Комплект
    поставки
  • Дополнительно
    потребуется
  • Подключение и
    монтаж
  • Сертификаты и
    гарантии
  • Отзывы о
    продукции
  • Видео
    обзор
  • Подбор
    котла
Документы завода
  • Сертификаты завода
  • Членство в СРО
  • Аттестованная технология сварки
  • Патенты на котельное оборудование
  • Товарные знаки
Смотреть все документы
Сертификат на водогрейные котлы на твердом и жидком топливе
Сертификат на водогрейные котлы на газе и жидком топливе
Сертификат на котлы отопительные паровые КП
Сертификат на топки
Сертификат на щиты управления
Сертификат на скиповые подъемники
Сертификат на золоуловители (циклоны)
Сертификат на конвейеры скребковые
Сертификат на дробилки
Сертификат на клапаны предохранительные
Сертификат на бункер-накопитель механизированный
Сертификат на автоматику газовых горелок
Сертификат о происхождении товара форма СТ-1
Членство в СРО
Членство в СРО
Аттестованная технология сварки
Свидетельство аттестованной технологии сварки
Патент на отопительный котел
Патент на водогрейный котел
Патент на топку водогрейного котла
Патент на водогрейный газовый котел
Патент на водогрейный котел
Патент на топочное устройство твердотопливного котла
Патент на водогрейный котел
HEATEXPERT товарный знак
KVZR товарный знак
STEAMEXPERT товарный знак
Другая похожая продукция
Котел 900 кВт на дровах
Лизинг
Вид топкиКолосники, ОУР
Максимальная тепловая мощность, кВт900
ТопливоДрова
Отапливаемая площадь, м²6900-9900
758 000 р. Цена с НДС
Котел 900 КВт уголь дрова
Лизинг
ТопливоУголь, Дрова, Твердое
Вид топкиКолосники, ОУР
Максимальная тепловая мощность, кВт900
Отапливаемая площадь, м²6900-9900
708 000 р. Цена с НДС
Котел 900 кВт без дымососа
Лизинг
Вид топкиКолосники
Максимальная тепловая мощность, кВт900
ТопливоУголь
Отапливаемая площадь, м²6900-9900
863 000 р. Цена с НДС
Котел на древесных отходах
Лизинг
Вид топкиРучная, Подовая
Максимальная тепловая мощность, кВт900
ТопливоТвердое, Дрова, Древесные отходы естественной влажности
Отапливаемая площадь, м²6900-9900
828 000 р. Цена с НДС
Котел на щепе 800 кВт
Лизинг
Вид топкиВихревая, Автоматическая
Максимальная тепловая мощность, кВт800
ТопливоЩепа
Отапливаемая площадь, м²6200-8900
2 468 000 р. Цена с НДС
Котел на щепе 1000 кВт
Лизинг
Вид топкиВихревая, Автоматическая
Максимальная тепловая мощность, кВт1000
ТопливоЩепа
Отапливаемая площадь, м²7700-11000
2 520 000 р. Цена с НДС
Вы просматривали эти товары
Котел на щепе 900 кВт
Лизинг
Вид топкиВихревая, Автоматическая
Максимальная тепловая мощность, кВт900
ТопливоЩепа
Отапливаемая площадь, м²6900-9900
2 497 000 р. Цена с НДС
Котел с водяными колосниками 800 кВт
Вид топкиВодяные колосники, Ручная
Максимальная тепловая мощность, кВт800
ТопливоТвердое, Уголь
Отапливаемая площадь, м²6200-8900
629 000 р. Цена с НДС
Котел на щепе 2500 кВт
Лизинг
Вид топкиВихревая, Автоматическая
Максимальная тепловая мощность, МВт2.5
ТопливоЩепа
Отапливаемая площадь, м²21100-27500
4 345 000 р. Цена с НДС
Котел с водяными колосниками 900 кВт
Лизинг
Вид топкиВодяные колосники, Ручная
Максимальная тепловая мощность, кВт900
ТопливоТвердое, Уголь
Отапливаемая площадь, м²6900-9900
655 000 р. Цена с НДС
background